
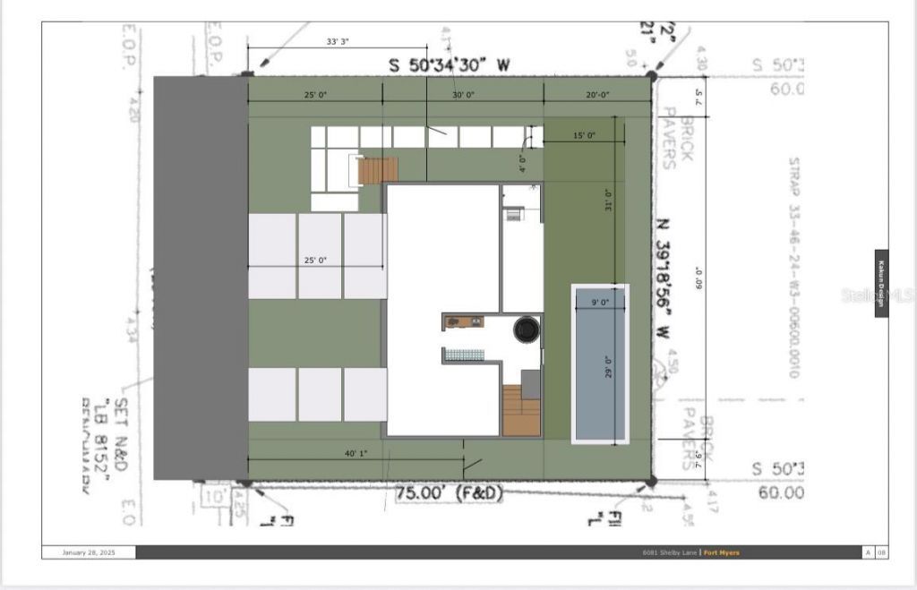
Just Two Homes from the Waves - Build-Ready Luxury Estate Opportunity. 6081 Shelby Lane, Fort Myers Beach.Welcome to 6081 Shelby Lane, a premier coastal lot offering the perfect blend of luxury design, prime location, and turnkey readiness-just steps from the Gulf of Mexico, with no streets to cross. Gulf Side.Luxury Poolside Living. Planned with leisure in mind, your future home includes a heated private swimming pool and a refreshing outdoor summer shower-the ultimate retreat after a beach day...Just Two Homes from the Waves - Build-Ready Luxury Estate Opportunity. 6081 Shelby Lane, Fort Myers Beach.Welcome to 6081 Shelby Lane, a premier coastal lot offering the perfect blend of luxury design, prime location, and turnkey readiness-just steps from the Gulf of Mexico, with no streets to cross. Gulf Side.Luxury Poolside Living. Planned with leisure in mind, your future home includes a heated private swimming pool and a refreshing outdoor summer shower-the ultimate retreat after a beach day.Elevated Outdoor Entertaining. Host in style with a covered 145 sq ft BBQ area, ideal for open-air gatherings with friends and family while soaking in the sea breeze.Build-Ready Specs Include: Lot size: 75 x 75 ft 3,078 sq ft under air | 4,012 total sq ft 3 Bedrooms + 1 Flex Room | 4 Bathrooms (3 Full + 1 Half) Three-story design with private elevator Expansive balconies for Gulf views Impact-resistant windows & doors Three-car garage & elevated construction to current FEMA & Miami-Dade hurricane codesLocated on a quiet, upscale street of multimillion-dollar homes, and minutes from dining, marinas, and all Fort Myers Beach has to offer.Architectural & engineering plans included - just build and enjoy.Don't miss your chance to secure this rare slice of coastal paradise. ALL INFORMATION FROM THE SELLER AND MUST BE VERIFIED BY THE BUYER!
View MoreCourtesy of
Agency Name: CASH FLOW IN MIAMI REALTY
Agency Contact: 786-942-0502
Agent Name: Andrey Rossin
Presented by
Agent Name: Lamees Hassan
Agent Phone: 954.554.9041
Agency Title: The Keyes Company
Send an email with a link to
6081 Shelby Lane, Fort Myers Beach, FL 33931.
Email 6081 Shelby Lane, Fort Myers Beach, FL 33931
Thank you for your inquiry! As a thank you, we have a Special Mortgage Offer for You.
We would like to provide you a free, no-obligation, home loan pre-approval review.